pixel

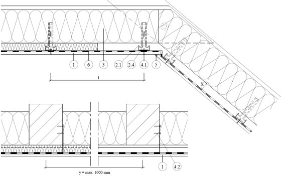
Rigips обшивка на скатен покрив на метална конструкция от Rigips CD профили монтирани с окачвачи за дърво 4.70.14

Rigips обшивка на скатен покрив на метална конструкция о (2).dwg  Rigips обшивка на скатен покрив на метална конструкция о (2).pdf

Rigips обшивка на скатен покрив на метална конструкция от Rigips CD профили монтирани с окачвачи за дърво 4.70.14

1. Rigips плоскости
2.1 Rigips CD профил 0,6 mm
2.4 Анкер бърз окачвач за дърво
3. Изолация от минерална вата
4.1 Rigips винтове TN 212/25
4.2 Рапидни винтове за дърво
5. Фугопълнител Rigips
6 Паропреграда
Максимално отстояние на CD профила от дървените греди (х) в
зависимост от дължината на окачвача:
Окачвач 125 mm – Максимално отстояние 75 mm
Окачвач 150 mm – Максимално отстояние 100 mm

Техническа бележка:

Пожароустойчивост
REI 15 – 30

Тегло
14-24 kg/m²

Описание
А: 4.70.14 (REI 15)
Еднослойна обшивка от плоскости Rigips 1xRB (A) 12.5 mm на метална конструкция от Rigips (CD) профили, монтирани към гредите с
окачвачи за дърво, с минерална изолация 100 mm с минимална плътност 15 kg/m³. (напр. Isover Akusto)
B: 4.70.14 (REI 15)
Еднослойна обшивка от плоскости Rigips 1xRF (DF) 12.5 mm на метална конструкция от Rigips (CD) профили, монтирани към гредите с
окачвачи за дърво, с минерална изолация 100 mm без допълнителни изисквания.
С: 4.70.14 (REI 30)
Двуслойна обшивка от плоскости Rigips 2xRB (A) 12.5 mm на метална конструкция от Rigips (CD) профили, монтирани към гредите с окачвачи
за дърво, с минерална изолация 160 mm с минимална плътност 40 kg/m³. (напр. Isover UNI)
D: 4.70.14 (REI 30)
Еднослойна обшивка от плоскости Rigips 1xRF (DF) 15 mm на метална конструкция от Rigips (CD) профили, монтирани към гредите с окачвачи
за дърво, с минерална изолация 100 mm с минимална плътност 15 kg/m³. (напр. Isover Akusto)

Сен-Гобен България – Ригипс
Сен-Гобен България – Ригипс

Сен-Гобен България – Ригипс

Направление Rigips е част от Сен-Гобен България ЕООД, дъщерно дружество на Сен-Гобен, световен лидер в производството и дистрибуцията на строителни продукти. Фирмата предлага на българския пазар пълната гама продукти за сухо строителство с марка Rigips – гипскартон, профили, аксесоари, фугопълнители, както и широка гама гипсови мазилки и шпакловки. Продуктите с марка Rigips се предлагат в дилърската мрежа на фирмата в цялата страна.

Още...