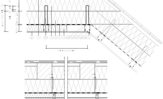
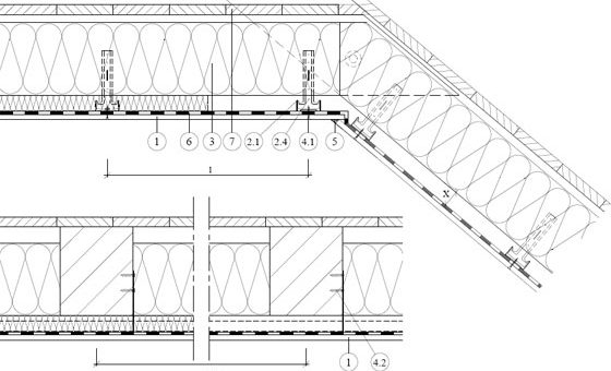
Rigips обшивка на скатен покрив на метална конструкция от Rigips CD профили монтирани с директни окачвачи 4.70.15
Свалете DWG и PDF 1. Rigips плоскости 2.1 Rigips CD профил 0,6 mm 2.4 Директен окачвач 3. Изолация от минерална вата 4.1 Rigips винтове TN 212/25 4.2 Рапидни винтове за дърво 4.3 Rigips винтове самонарезни с плоска глава 421/9.5 LB 5. Фугопълнител Rigips 6 Паропреграда 6.a Алтернативен монтаж на паропреграда Техническа...
