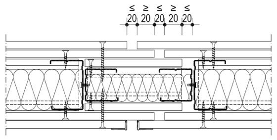
Деформационна фуга F90

- Закрепване на стопер за врата 2 - 01.04.2011
- Инсталации в изолационния слой 2 - 01.04.2011
- Закрепване на каса за врата 2 - 01.04.2011
Кнауф България · Публикувано на · Обновявана

Кнауф България
Като водещ производител на строителни продукти Кнауф България ЕООД разполага с квалифицирани специалисти, които да откликнат на всеки Ваш въпрос, свързан с наш продукт, система или обект. Плоскостите Кнауф се произвеждат от натурален или Реа гипс, рециклирани хартиени отпадъци и вода. Разработването на гипсовите находища за разлика от други суровини изисква малко площ, а намесата в природата е ограничена във времето и пространството. Още при подготовката за разработване на находището, се изготвя съвместно с природозащитни дружества концепция за по – късното му рекултивиране и ренатуриране.
Сен-Гобен България – Вебер · Published 24.03.2020 · Last modified 24.02.2026
