Къща Luisina в Аржентина – проектирана за растеж и трансформации

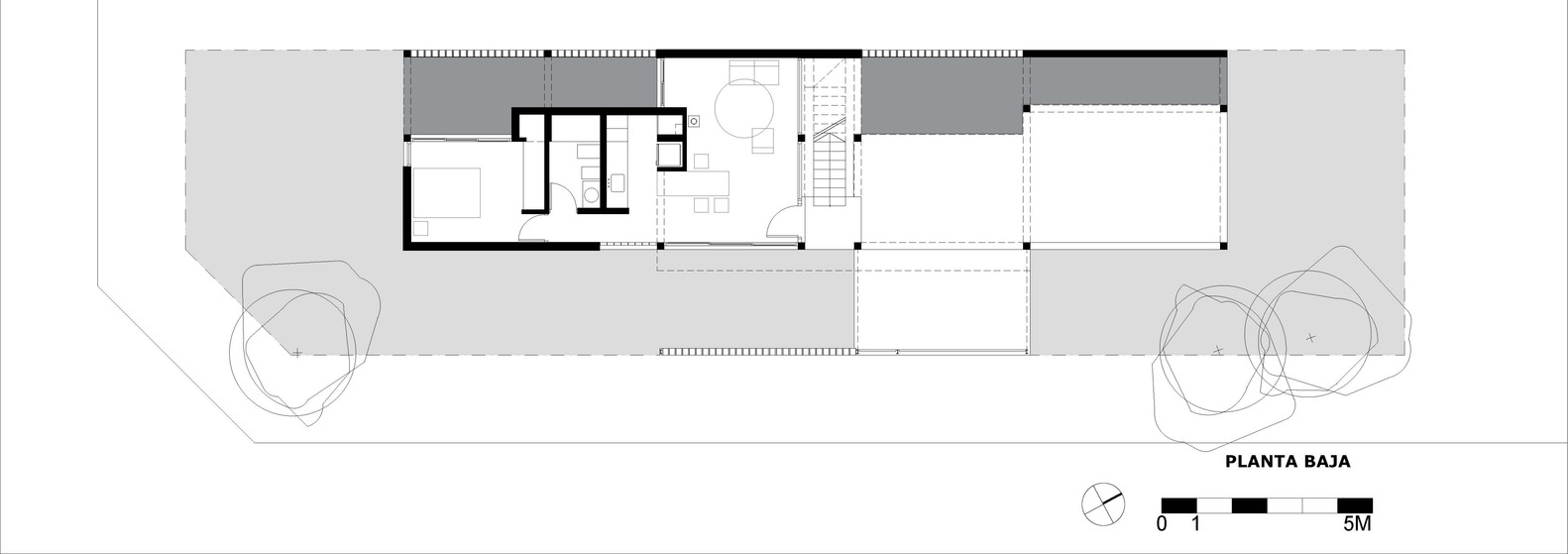
Reimers Risso Arquitectura проектират къща Luisina така, че тя позволява 4 възможности за разширение. Предварителното условие на собственичката е да се гарантира приспособимост и възможност на обитателите да извършват промени. Това е къща, която включва фотографско студио с разширения, които се адаптират към обществените нужди като места за уъркшопи и изложби. В началния етап се предлага минимално вътрешно пространство, допълнителните разширения остават скрити в разделителната способност на конструкцията както от техническа, така и от пространствена гледна точка.
Система от галерии или вътрешни дворове създава преходни пространства между това, което ние считаме за чисто вътрешни пространства, и тези, които са външни. Търси се елементарен език. Функционалната подредба се фокусира върху разширяване на пространствата с минимална повърхност, като ги квалифицира с множество текстури и възможности за използване. Целта е да се дефинират структурни и конструктивни системи, които да се превърнат във възможности, пространства за растеж и трансформации. Те се мислят свободно, открито, за да позволят бъдещи конкретизации.
Съоръженията трябва да подкрепят промените и актуализациите. Собственичката на къщата е от основно значение в процеса на проектиране, тъй като нейната бъдеща намеса, в конкретизирането на нейния дом, е един от основните въпроси при вземане на решение за избор на строителни системи. Къщата трябва да се адаптира към нейните бъдещи нужди и трябва да може да бъде подобрявана.

