Къща на тишината в Коломбо, Шри Ланка

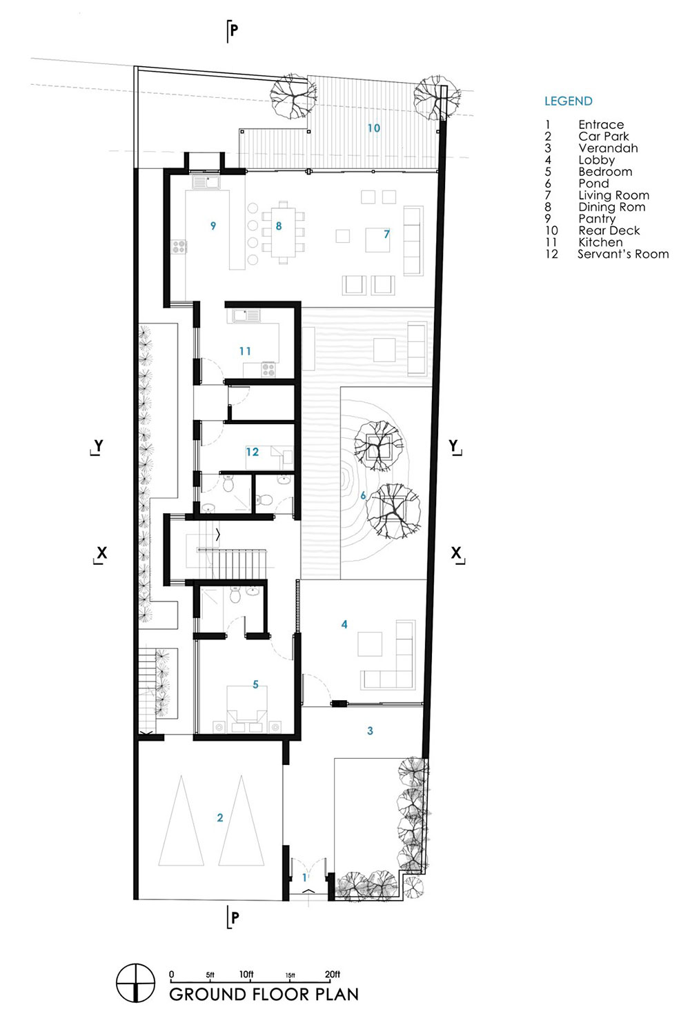
Базираната в Коломбо архитектурна компания Damith Premathilake Architects завърши наскоро строителството на еднофамилна къща в Коломбо, Шри Ланка. „Къща на тишината“ се намира на парче земя с ширина от едва 14,4 метра в предградие на Коломбо, непосредствено до оризово поле. Тази природосъобразна обител съчетава природата и архитектурата, за да отпразнува красотата на прилежащото оризово поле.

Къщата е проектирана в тропически контекст за постигане на идеална ориентация, като предната част на парцела е обърната към алеята за достъп, а задната част към безкрайното спокойно оризово поле. Това разположение помага за улавяне на естествената вентилация, което създава комфортна и прохладна атмосфера в къщата.
Минималистичното жилище изпълнява желанието на клиента да се свърже с природата с гледка към оризовото поле. Изгледът към него, който се открива още от входа, както и използването на земни цветове, отразяващи зеленината на природата, спомагат за размиване на границите между вътрешно и външно пространство, създавайки цялостно усещане за спокойствие и тишина. Всеки, който влиза в къщата, чувства, че природата е проникнала във вътрешността. При влизане в къщата топла градина, застлана с червен чакъл и няколко дървета, създават приятно посрещане. Елегантно плитко езерце, разположено в центъра на къщата, насочва вниманието към уникална тухлена стена. Играта на светлини и сенки върху тази тухлена стена през различните часове на деня добавя към очарователната атмосфера на къщата. Експонираната стена добавя дълбочина и текстура, като в същото време разумно крие факта, че това е празна стена. Осветлението на езерцето е проектирано така, че да се плъзга по повърхността на водата, създавайки по-силен отразяващ ефект от това, което би било постигнато, ако осветлението беше потопено под вода.
Всички вътрешни пространства на двуетажната къща се отварят към централното пространство с двойна височина с две дървета, издигащи се от езерото, което е частично отворено към небето. Хармоничното използване на рециклирани дървени железопътни траверси и голи тухли създава приказна атмосфера. Цветовете и материалите са подбрани така, че да не се допусне еднаквост в различните пространства на къщата. Това е видимо още от входната страна и гаражната врата, подчертана от пореста гола тухлена стена, която добавя индивидуалност и характер на къщата. Внимателното смесване на съществуващите дървета и терасите на горното ниво създава интересни пространства, украсени с короните на дърветата.



























- Обновяването на стара сграда в средиземноморски стил - 15.04.2026
- Стилно кокетно жилище, което ще обикнете - 14.04.2026
- Бетон и светлина: Модерният брутализъм в новия параклис в Сейнт Луис - 14.04.2026
