Austin Maynard Architects реновира викторианска вила в Мелбърн

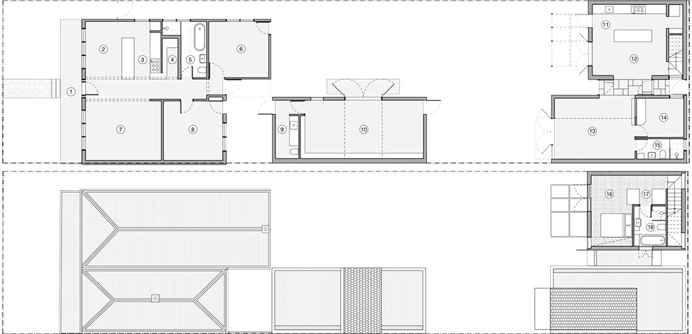
Разположена в района на Фицрой в Мелбърн, Terracotta House се състои от вила и градина, достатъчно голяма, за да побере втори имот, заедно с общ павилион-библиотека. Собственикът се обръща към Austin Maynard Architects, за да създаде отделен дом за сина си и общо пространство за цялото семейство.

Съществуващата облечена в дърво викторианска вила е реновирана, за да запази оригиналния си характер, което същевременно я прави по-подходяща за съвременния начин на живот. Интериорът е пренареден, кухнята, дневната и трапезарията са изнесени в предната част на къщата, така че да гледат към ориентираната на север градина и към улицата, а вътрешните стени са премахнати, за да се подобри циркулацията. Така новото оформление засилва връзката с градината и верандата. Инсталирани са нова кухня и баня, докато частните зони, включително спалните, са преместени в задната част на къщата.

Павилионът-библиотека е разположен на западната граница на имота и гледа към общата градина.

Новопостроената къща е разположена в задната част на имота и обхваща цялата ширина на парцела. Тя има кухня, трапезария, хол, баня и кабинет на приземния етаж, с основна спалня и баня на горния етаж. Къщата се състои от компактни и свързани обеми, планирани да оптимизират наличното външно пространство. Ориентацията на сградата и формата на покрива я излагат на обилна светлина и разкриват хубави гледки.
Теракотените плочки върху стените и покривите променят оттенъка на цвета си през целия ден. Техният цвят и текстура допълват регенерираната тухла, използвана за други секции на външните стени.

Теракотени плочки и регенерирани тухли се използват и във вътрешността на къщата, където представляват част от палитрата изчистени материали, която включва дървени повърхности и бетонни подове.

Проектираните от местни художници за фирмата Willie Weston тапети, се използват в кухнята и салона, за да придадат изтънчен и деликатен контраст на суровата, открита тухлена зидария.
Студиото Austin Maynard Architects работи по жилищни и търговски проекти, възприемайки концептуален подход, който отговаря на важни въпроси като жизненост, култура, наследство и общностни връзки.

