Новият щаб на “Лекари без граници” в Барселона

Стара индустриална сграда в Барселона е преобразувана за нуждите на Корпоративния щаб на “Лекари без граници”.
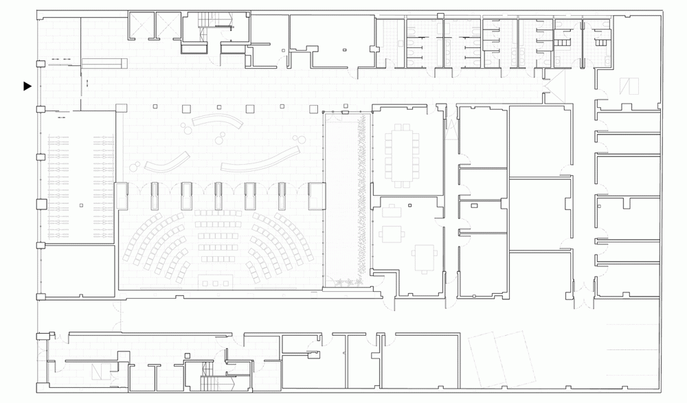
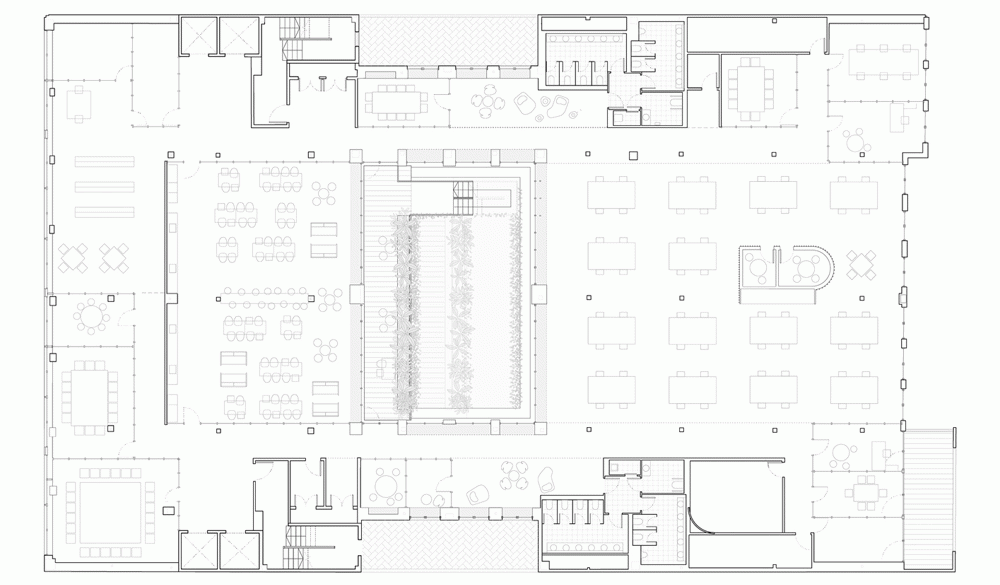
Сградата заема почти целия парцел и има много дълбоки пространства с малко естествено осветление и вентилация, а покривът е използван изключително за инсталации. Обновяването включва озеленен шахматен двор, подобряващ осветлението и вентилацията на вътрешните пространства. Терасите разширяват работните зони с нови места за срещи и събиране на открито. Във вътрешния двор е включено и ново стълбище, което засилва връзката със зелените пространства и насърчава здравословните навици, биологичното разнообразие и генерира биофилни зони.

Приземният етаж се разбира като продължение на улицата, пряко свързан с главната фасада и достъпа до сградата. Гъвкавите работни пространства са разположени на четирите етажа и са организирани около новия централен двор. Обновеният динамичен покрив предлага допълнителни открити пространства за общуване и работа. Той е структуриран в две зони: основната тераса с места за отдих и срещи, с обилна растителност и подвижни сенници; и друга зона за инсталациите на сградата.

Обновяване на съществуващата сграда ще произведе по-малко от половината емисии на CO2, отколкото ако бъде разрушена и изградена наново. Насърчаване на биологичното разнообразие чрез проектиране на биофилна сграда, където растителността е главният герой на покрива, в двора, по фасадите и в интериора, подобрява здравето на хората, качеството на въздуха и биологичното разнообразие на града. Рециклирането и повторното използване на дъждовната вода спомага за кръговата икономика.
Устойчивата мобилност е подкрепена от велосипедния паркинг на главния вход на сградата. Предпочетени са местни, екологични и рециклируеми материали. Като основен материал на проекта се използва сертифицирана дървесина. Разработват се пасивни стратегии за постигане на минимално потребление на енергия.

Здравето и благосъстоянието на потребителите е основната стратегия на проекта, която подобрява пространствения, физическия и материалния им комфорт. Обновяването е възможност за трансформиране на остарели и неефективни сгради, за да им се даде нов живот, оптимизирайки ресурсите и намалявайки въздействие върху околната среда.


